header

kwabhaca mall

Completion Date

september 2022

Value

R270 million

CURRENT STATUS

completed

EXTENT

19 000m2

PROPERTY TYPE

SHOPPING CENTRE

Kwabhaca lower Ground Floor

Kwabaca Shopping Centre is a strategically positioned convenience retail destination designed to meet the everyday needs of its surrounding community. The ground floor has been purposefully planned to accommodate a strong mix of high-demand tenants, including leading financial institutions, popular clothing retailers, homeware and furniture stores, creating consistent foot traffic and repeat visits. Anchored by Shoprite, the centre benefits from a trusted national supermarket brand that drives daily shopper volumes, supports tenant performance, and strengthens Kwabaca Shopping Centre’s position as a key retail hub for essential, affordable, and lifestyle shopping.

kwabhaca ground floor

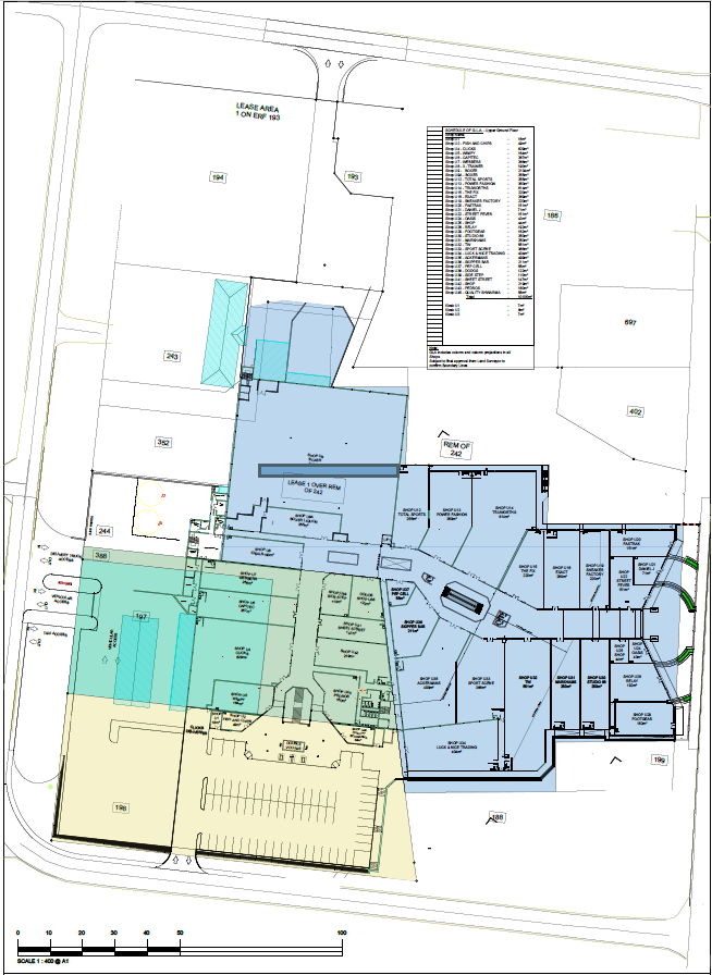
Kwabhaca Upper ground Floor

Kwabhaca Shopping Centre’s Upper Ground Floor offers a lively retail mix designed to match everyday lifestyles and convenience. This level features a strong selection of popular fast food outlets, trendy clothing stores, shoe retailers, cell phone shops and practical homeware stores, creating a one-stop shopping destination for quick meals, fashion essentials, mobile needs and household basics. With easy access and steady foot traffic, the Upper Ground Floor delivers a vibrant shopping experience that keeps customers coming back.

upper ground floor